Appartement 5 pièces vésinet quartier princesse
Description
QUARTIER PRINCESSE
Situé en rez-de-chaussée, nous vous proposons à la vente ce bel appartement niché au cœur d'une jolie résidence de standing familiale
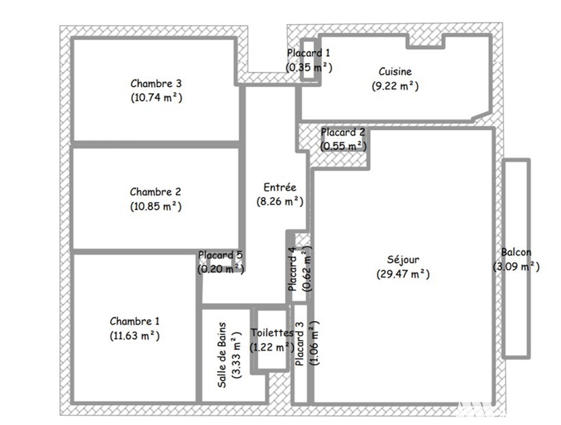
Ce bien de 5 pièces principales comprend : Entrée avec vaste placard, double séjour de près de 30m² avec balcon de 3m² plein sud, cuisine aménagée et équipée (four, four micro-ondes, plaques, hotte, lave-vaisselle), trois chambres dont l'une avec grand dressing, salle de bains, toilette indépendante
Parfait état pour cet appartement traversant, baigné de lumière dont la distribution est optimale et l'environnement verdoyant plus qu'agréable
Une cave ainsi qu'un emplacement de parking en sous-sol complètent cette offre
Un parking vélos poussettes est également à disposition des résidents
Vous trouverez à 80m un arrêt de bus et à 700m la gare du Vésinet Centre
L'école maternelle et primaire se situe en face de la résidence et de nombreux espaces verts sont à proximité immédiate
Nous serions enchantés de vous faire découvrir de bien, contactez nous sans plus attendre
Situé en rez-de-chaussée, nous vous proposons à la vente ce bel appartement niché au cœur d'une jolie résidence de standing familiale
Ce bien de 5 pièces principales comprend : Entrée avec vaste placard, double séjour de près de 30m² avec balcon de 3m² plein sud, cuisine aménagée et équipée (four, four micro-ondes, plaques, hotte, lave-vaisselle), trois chambres dont l'une avec grand dressing, salle de bains, toilette indépendante
Parfait état pour cet appartement traversant, baigné de lumière dont la distribution est optimale et l'environnement verdoyant plus qu'agréable
Une cave ainsi qu'un emplacement de parking en sous-sol complètent cette offre
Un parking vélos poussettes est également à disposition des résidents
Vous trouverez à 80m un arrêt de bus et à 700m la gare du Vésinet Centre
L'école maternelle et primaire se situe en face de la résidence et de nombreux espaces verts sont à proximité immédiate
Nous serions enchantés de vous faire découvrir de bien, contactez nous sans plus attendre
Bien en copropriété : 56 lots
Charges courantes : 4326 € par an
Pas de procédure(s) en cours
Prix : 510 000 € honoraires inclus
Prix honoraires exclus : 490 000 €Honoraires : 4.08% TTC à la charge l'acquéreur
Les plus
Balcon
Gardien
Stationnement
Caractéristiques
| Ville : LE VESINET (78110) |
| Secteur : Le Vésinet |
| Nature : Appartement |
| Surface : 87 m² |
| Surface Carrez : 87 m² |
| Nombre de pièces : 5 |
| Nombre de chambres : 3 |
| Salle de bain : 1 |
| Référence : AMI4196 |
Contact